Contact
Buying or Selling your House in Western Newfoundland and Labrador
Home
Properties
Communities
Corner Brook
Deer Lake
Happy Valley-Goose Bay
Port aux Basques - Codroy Valley
St. Anthony
Stephenville
Subdivisions
Bay Crescent
Discovery Ridge
Foote Street
Miller Crescent
Shamrock Crescent
Stella's Place
Valleyview Estates
Our Team
About Us
Expert Advice
Contact Us
0
Home
Properties
2 Whitney Street
2 Whitney Street
Bay Roberts, Newfoundland & Labrador
$274,900
Previous
Next
Quick Summary
Location
Bay Roberts, Newfoundland & Labrador
Price
$274,900
Building Type
House
Property Type
Single Family
Status
For sale
Area
1690 sqft
Beds
2
Baths
1
Age
n/a
Postal Code
A0A 1G0
MLS®
1291172
Courtesy Of
Royal LePage Atlantic Homestead
Database ID:60380 DDF Feed ID: 28947735 Latitude: 47.606155 Longitude: -53.238317
Property Description
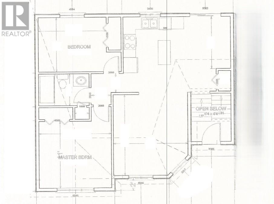
Welcome to 2 Whitney Street, Bay Roberts. Construction is set to begin on this new construction home! Home will offer a view of Bay Roberts Harbour and will sit nicely on a 75' x 160' lot with town services. The home will feature 2 bedrooms, three - piece main bathroom, spacious eat - in kitchen, bright living room, full undeveloped basement, electric heat, new home warranty and quality finishes. HST is included in the purchase price with rebate to be assigned to vendors on closing. (id:47053)
Contact An Agent
Your Name
*
Email
*
Phone
I prefer to be contacted via
email
phone
text
I would like more information about 2 Whitney Street, Bay Roberts, listed for $274,900.
Comments or Questions
Building Information
Building Type: House
2 Beds
1 Bath
Area: 1690 sqft
Baseboard heaters
Electric Heat
Air exchanger
Vinyl siding
Flooring: Laminate, Other
Concrete foundation
1 story
Municipal water
Full Details
General
MLS® Number:
1291172
Ownership Type:
Freehold
Price:
$274,900
Property Type:
Single Family
Transaction Type:
For Sale
View Type:
Ocean view
Zoning Description:
RES
More Information Link:
https://www.realtor.ca/real-estate/28947735/2-whitney-street-bay-roberts
Land
Size Total Text:
75' x 160' Approx|10,890 - 21,799 sqft (1/4 - 1/2 ac)
Sewer:
Municipal sewage system
Size Irregular:
75' x 160' Approx
Building
Bathroom Total:
1
Bedrooms Above Ground:
2
Bedrooms Total:
2
Constructed Date:
2025
Construction Style Split Level
Split level
Cooling Type:
Air exchanger
Exterior Finish:
Vinyl siding
Flooring Type:
Laminate, Other
Foundation Type:
Concrete
Half Bath Total:
0
Heating Fuel:
Electric
Heating Type:
Baseboard heaters
Stories Total:
1
Size Interior:
1690 sqft
Type:
House
Utility Water:
Municipal water
Rooms
Level
Type
Dimensions
Main level
Bath (# pieces 1-6)
3 pc
Main level
Living room
13.05 x 12
Main level
Bedroom
11.08 x 10.11
Main level
Bedroom
8.11 x 10.11
Main level
Eat in kitchen
17 x 8.08
Listing information last updated on 2025-10-03 14:23:15 -0230
Search Properties
Region
Corner Brook
Deer Lake
Happy Valley-Goose Bay
Northern Peninsula
Pasadena
Port aux Basques
Stephenville
Property Type
Agriculture
Business
Industrial
Multi-family
Office
Other
Recreational
Retail
Single Family
Vacant Land
Transaction Type
For Lease
For Rent
For Sale
Beds
1+
2+
3+
4+
5+
Baths
1+
2+
3+
4+
5+
Min $
$0
$25,000
$50,000
$75,000
$100,000
$125,000
$150,000
$175,000
$200,000
$225,000
$250,000
$275,000
$300,000
$325,000
$350,000
$375,000
$400,000
$425,000
$450,000
$475,000
$500,000
$600,000
$700,000
$800,000
$900,000
$1,000,000
$1,100,000
$1,200,000
$1,300,000
$1,400,000
$1,500,000
$1,600,000
$1,700,000
$1,800,000
$1,900,000
$2,000,000
$2,500,000
$3,000,000
$4,000,000
$5,000,000
$7,500,000
$10,000,000
Max $
$0
$25,000
$50,000
$75,000
$100,000
$125,000
$150,000
$175,000
$200,000
$225,000
$250,000
$275,000
$300,000
$325,000
$350,000
$375,000
$400,000
$425,000
$450,000
$475,000
$500,000
$600,000
$700,000
$800,000
$900,000
$1,000,000
$1,100,000
$1,200,000
$1,300,000
$1,400,000
$1,500,000
$1,600,000
$1,700,000
$1,800,000
$1,900,000
$2,000,000
$2,500,000
$3,000,000
$4,000,000
$5,000,000
$7,500,000
$10,000,000
Sort By
Lowest Price First
Highest Price First
Date Added
Include Sold / Pending Sale
Mortgage Calculator
Mortgage Amount
$
Downpayment
$
Interest Rate
%
Amortization Period
Years
Payment Frequency
Bi-monthly
Monthly
Semi-monthly
Bi-weekly
Weekly
This calculator is for demonstration purposes only.
Our Tools
Contact Us
Real Estate Alert
Calculation Tools
Complementary Professionals
Online Evaluation
Useful Links
Exclusive Listings
View Exclusive Listings