Contact
Buying or Selling your House in Western Newfoundland and Labrador
Home
Properties
Communities
Corner Brook
Deer Lake
Happy Valley-Goose Bay
Port aux Basques - Codroy Valley
St. Anthony
Stephenville
Subdivisions
Bay Crescent
Discovery Ridge
Foote Street
Miller Crescent
Shamrock Crescent
Stella's Place
Valleyview Estates
Our Team
About Us
Expert Advice
Contact Us
0
Home
Properties
26 Pennywell Road
26 Pennywell Road
St. John's, Newfoundland & Labrador
$239,900
Previous
Next
Quick Summary
Location
St. John's, Newfoundland & Labrador
Price
$239,900
Building Type
House
Property Type
Single Family
Status
For sale
Area
1200 sqft
Beds
3
Baths
1
Age
n/a
Postal Code
A1C 2K9
MLS®
1290350
Courtesy Of
3% Realty East Coast
Database ID:59821 DDF Feed ID: 28883016 Latitude: 47.563282 Longitude: -52.71807
Property Description
Searching for a cozy place to call home, the perfect Airbnb, or your very first property? Then welcome to 26 Pennywell Road. Located in the heart of St. John’s, this 3-bedroom, 1-bathroom, 1,200 sq. ft. property is calling your name. As the first home in the row, it offers excellent curb appeal and a central location close to all amenities. This property has seen many upgrades, including a commercial-grade rubberized roof, all-electric heat, vinyl windows, new flooring on the main floor, two new staircases with modern railing, and updated light fixtures throughout. Structural improvements include new structural beams under the home, a new cement footing in the back, and a 2020 hot water tank. The bathroom features a new tub surround and sink, while the laundry area includes a new washer, dryer, and vinyl flooring. A new closet has been added in the hallway and another in the adjacent bedroom. Outside, enjoy a fully fenced yard with a new fence, retaining wall, fresh sod, and patio stones. Along with a shed, and a ground-level deck that captures afternoon and evening sun. Most furniture is also negotiable. Upgraded and move-in ready, this home combines comfort, convenience, and investment potential in the historic centre of St. John’s. With its cozy appeal and no seller’s directive in place, this property won’t last long—schedule your viewing today! (id:47053)
Contact An Agent
Your Name
*
Email
*
Phone
I prefer to be contacted via
email
phone
text
I would like more information about 26 Pennywell Road, St. John's, listed for $239,900.
Comments or Questions
Building Information
Building Type: House
3 Beds
1 Bath
Area: 1200 sqft
Baseboard heaters
Electric Heat
Vinyl siding
Flooring: Mixed Flooring, Other
Concrete foundation
1 story
Municipal water
Full Details
General
MLS® Number:
1290350
Ownership Type:
Freehold
Price:
$239,900
Property Type:
Single Family
Storage Type:
Storage Shed
Transaction Type:
For Sale
Zoning Description:
RES
More Information Link:
https://www.realtor.ca/real-estate/28883016/26-pennywell-road-st-johns
Land
Size Total Text:
22x70|under 1/2 acre
Fence Type:
Fence
Sewer:
Municipal sewage system
Size Irregular:
22x70
Building
Bathroom Total:
1
Bedrooms Above Ground:
3
Bedrooms Total:
3
Appliances:
Refrigerator, Microwave, Stove, Washer, Dryer
Constructed Date:
1930
Exterior Finish:
Vinyl siding
Flooring Type:
Mixed Flooring, Other
Foundation Type:
Concrete
Half Bath Total:
0
Heating Fuel:
Electric
Heating Type:
Baseboard heaters
Stories Total:
1
Size Interior:
1200 sqft
Type:
House
Utility Water:
Municipal water
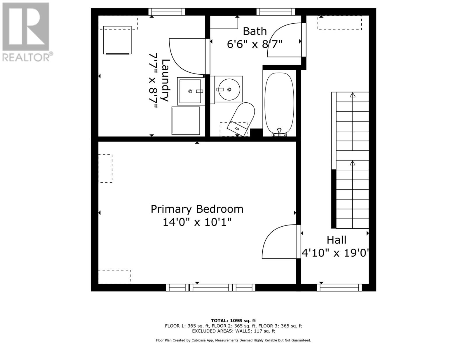
Rooms
Level
Type
Dimensions
Second level
Laundry room
7.7x8.7
Second level
Bath (# pieces 1-6)
6.6x8.7
Second level
Bedroom
14.0x10.1
Third level
Other
6.2x15.1
Third level
Bedroom
12.8x10.0
Third level
Bedroom
12.8x8.8
Main level
Porch
4.9x7.8
Main level
Foyer
4.9x11.4
Main level
Living room
14.0x10.2
Main level
Kitchen
14.0x8.2
Listing information last updated on 2025-09-18 17:23:18 -0230
Search Properties
Region
Corner Brook
Deer Lake
Happy Valley-Goose Bay
Northern Peninsula
Pasadena
Port aux Basques
Stephenville
Property Type
Agriculture
Business
Industrial
Multi-family
Office
Other
Recreational
Retail
Single Family
Vacant Land
Transaction Type
For Lease
For Rent
For Sale
Beds
1+
2+
3+
4+
5+
Baths
1+
2+
3+
4+
5+
Min $
$0
$25,000
$50,000
$75,000
$100,000
$125,000
$150,000
$175,000
$200,000
$225,000
$250,000
$275,000
$300,000
$325,000
$350,000
$375,000
$400,000
$425,000
$450,000
$475,000
$500,000
$600,000
$700,000
$800,000
$900,000
$1,000,000
$1,100,000
$1,200,000
$1,300,000
$1,400,000
$1,500,000
$1,600,000
$1,700,000
$1,800,000
$1,900,000
$2,000,000
$2,500,000
$3,000,000
$4,000,000
$5,000,000
$7,500,000
$10,000,000
Max $
$0
$25,000
$50,000
$75,000
$100,000
$125,000
$150,000
$175,000
$200,000
$225,000
$250,000
$275,000
$300,000
$325,000
$350,000
$375,000
$400,000
$425,000
$450,000
$475,000
$500,000
$600,000
$700,000
$800,000
$900,000
$1,000,000
$1,100,000
$1,200,000
$1,300,000
$1,400,000
$1,500,000
$1,600,000
$1,700,000
$1,800,000
$1,900,000
$2,000,000
$2,500,000
$3,000,000
$4,000,000
$5,000,000
$7,500,000
$10,000,000
Sort By
Lowest Price First
Highest Price First
Date Added
Include Sold / Pending Sale
Mortgage Calculator
Mortgage Amount
$
Downpayment
$
Interest Rate
%
Amortization Period
Years
Payment Frequency
Bi-monthly
Monthly
Semi-monthly
Bi-weekly
Weekly
This calculator is for demonstration purposes only.
Our Tools
Contact Us
Real Estate Alert
Calculation Tools
Complementary Professionals
Online Evaluation
Useful Links
Exclusive Listings
View Exclusive Listings